立即預約 立即預約
免費定制整裝家居

免費定制整裝家居

一站置家 全程無憂 一省到底
hide.png

當前位置: 首頁 > 裝修案例效果圖 > 太湖龍附世家|現代簡約

太湖龍附世家|現代簡約 200平 現代簡約風格效果圖

收藏
案例風格 現代簡約 案例戶型 四居 案例面積 200平米
樓盤名稱 太湖龍附世家 設計師 仲崇彤 案例類型 改善性住宅

設計理念:設計師整體設計理念: 整體思路考慮簡單,容易打理,便于居住的前提下多考慮一些暖色調,不要太冷。

客廳
第1張
第2張
餐廳
第1張
第2張
第3張
臥室
第1張
第2張
衛(wèi)生間
第1張
第2張
廚房
第1張
第2張
第3張
休閑區(qū)
第1張
衣帽間
第1張
第2張
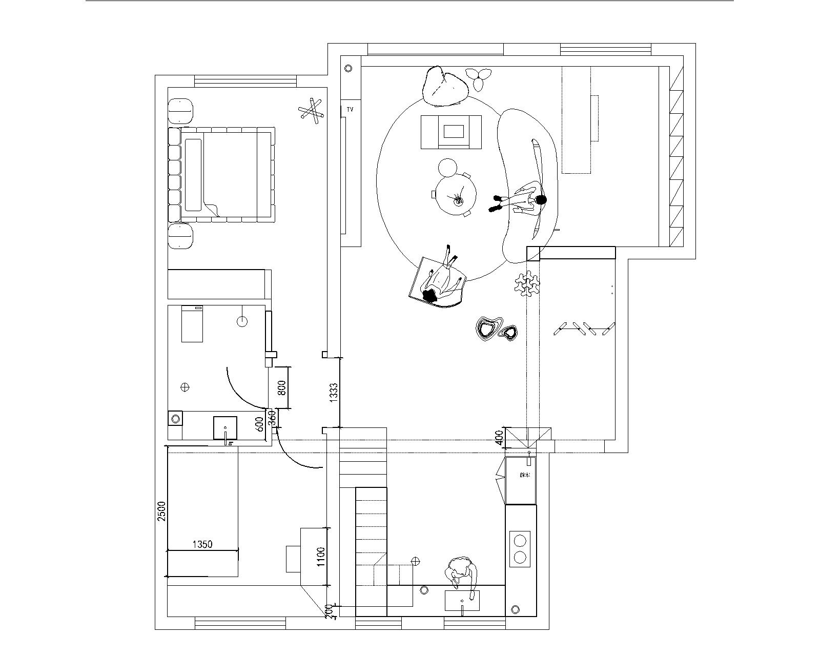
戶型圖
第1張
仲崇彤設計丨太湖龍府世家-客餐廳 0-20240413-164034.jpg 仲崇彤設計丨太湖龍府世家-客餐廳 18-20240413-164035.jpg

客廳說明: 主色調是第一,要簡單溫馨設計,現代風格體現線條統(tǒng)一。光線要溫馨。工作一天了,回家要舒適一些。

仲崇彤設計丨太湖龍府世家-客餐廳 12-20240413-164035.jpg 仲崇彤設計丨太湖龍府世家-客餐廳 9-20240413-164034.jpg 仲崇彤設計丨太湖龍府世家-客餐廳 17-20240413-164035.jpg 仲崇彤設計丨太湖龍府世家-次臥 15-20240413-164035.jpg 仲崇彤設計丨太湖龍府世家-主臥 16-20240413-164035.jpg

臥室說明: 定制的顏色要與墻體有個反差,看著不要太近。溫馨一些的就可以

仲崇彤設計丨太湖龍府世家-衛(wèi)生間 13-20240413-164036.jpg 仲崇彤設計丨太湖龍府世家-衛(wèi)生間 14-20240413-164035.jpg

衛(wèi)生間:較小,功能性夠用即可。唯一的要求是要定制的大手盆設計。

仲崇彤設計丨太湖龍府世家-客餐廳 10-20240413-164035.jpg 仲崇彤設計丨太湖龍府世家-客餐廳 11-20240413-164035.jpg 仲崇彤設計丨太湖龍府世家-客餐廳 12-20240413-164035.jpg

廚房說明:樓梯設計再廚房側面。做的餐廚一體設計,考慮了樓梯下電器柜的設計效果。增加了很多儲物空間

仲崇彤設計丨太湖龍府世家-佛龕 2-20240413-164034.jpg 仲崇彤設計丨太湖龍府世家-衣帽間 7-20240413-164035.jpg 仲崇彤設計丨太湖龍府世家-衣帽間 6-20240413-164035.jpg 7e764eed82983ccfd05b2ac7f3913a2.jpg

案例設計師

仲崇彤

設計師:仲崇彤

從業(yè)時間:15年

設計理念:設計就是著重于點、線、面的靈活運用,把整個環(huán)境營造出家的溫馨。

預約設計師

算算你家裝修多少錢

報名即享豐厚贈品,享半價裝修

免費報價
咨詢熱線:400-656-9909
20190221103704574636.jpg

精品設計案例

20180612134930523248.jpg 服務號二維碼.jpg