立即預約 立即預約
免費定制整裝家居

免費定制整裝家居

一站置家 全程無憂 一省到底
hide.png

當前位置: 首頁 > 裝修案例效果圖 > 首創(chuàng)國際城

首創(chuàng)國際城 86平 北歐風格效果圖

收藏
案例風格 北歐 案例戶型 二居 案例面積 86平米
樓盤名稱 首創(chuàng)國際城 設計師 林鳳裝飾設計師 案例類型 婚房

設計理念:本案以北歐為主的設計,中性時尚,溫馨,家是一家人的家,不要太另類,不要太過復雜,這種搭配令空間充滿恒久的親和力!讓人比較容易接受的風格,是最值得選擇。

客廳
第1張
第2張
餐廳
第1張
第2張
臥室
第1張
廚房
第1張
門廳
第1張
過廊
第1張
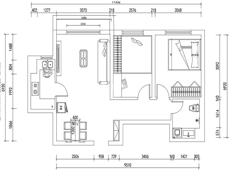
戶型圖
第1張
  • 案例詳情

首創(chuàng)國際城-86平-北歐風格-客廳.jpg 首創(chuàng)國際城-86平-北歐風格-客廳1.jpg

客戶喜歡明亮的的起居室,更多的是意境和隨意。帶給業(yè)主不盡的舒適觸感。

首創(chuàng)國際城-86平-北歐風格-餐廳.jpg 首創(chuàng)國際城-86平-北歐風格-餐廳1.jpg

餐廳整體和客廳融為一體。

首創(chuàng)國際城-86平-北歐風格-臥室.jpg

小臥室打造現代風格,要求簡單大方色彩明亮。

首創(chuàng)國際城-86平-北歐風格-廚房.jpg 首創(chuàng)國際城-86平-北歐風格-門廳.jpg 首創(chuàng)國際城-86平-北歐風格-過廊.jpg 首創(chuàng)國際城-86平-北歐風格-平面布局圖.jpg

案例設計師

林鳳裝飾設計師

設計師:林鳳裝飾設計師

從業(yè)時間:4年

設計理念:因人而異的設計才是好設計

預約設計師

算算你家裝修多少錢

報名即享豐厚贈品,享半價裝修

免費報價
咨詢熱線:400-656-9909
20190221103704574636.jpg

精品設計案例

20180612134930523248.jpg 服務號二維碼.jpg