立即預約 立即預約
免費定制整裝家居

免費定制整裝家居

一站置家 全程無憂 一省到底
hide.png

當前位置: 首頁 > 裝修案例效果圖 > 龍湖唐寧ONE

龍湖唐寧ONE 130平 混搭風格效果圖

收藏
案例風格 混搭 案例戶型 三居 案例面積 130平米
樓盤名稱 龍湖唐寧ONE 設計師 林鳳設計師 案例類型 改善性住宅

設計理念:本案例定位為混搭風格,為了整體空間大小,家具主要采用深色實木家具和白色的柜體搭配,并在空間上考慮到戶型的情況和業(yè)主想法,重點在實用性和儲藏空間下了很大的功夫。

客廳
第1張
餐廳
第1張
臥室
第1張
第2張
衛(wèi)生間
第1張
廚房
第1張
兒童房
第1張
衣帽間
第1張
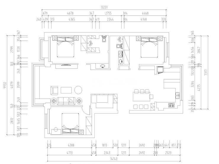
戶型圖
第1張
  • 案例詳情

龍湖唐寧ONE-130平-混搭風格-客廳.jpg

客廳我們采用灰棕色系的措紋瓷磚,電視背景墻運用硅藻泥磚型圖案,使墻面更加立體。

龍湖唐寧ONE-130平-混搭風格-餐廳.jpg

中式家具是空間更加有莊重,運用藍色的桌旗做為點綴,與廚房的櫥柜顏色相呼應。

龍湖唐寧ONE-130平-混搭風格-臥室1.jpg 龍湖唐寧ONE-130平-混搭風格-臥室2.jpg

臥室首先要滿足舒適度,顏色以暖色為主,使空間更加溫馨,抱枕加一些跳躍顏色使空間更加活波。

龍湖唐寧ONE-130平-混搭風格-衛(wèi)生間.jpg

衛(wèi)生間搭配灰色的瓷磚與白色陶瓷相結合,使空間層次分明。

龍湖唐寧ONE-130平-混搭風格-廚房.jpg

廚房的面積也不是很大,因此廚房的設計除了效果以外就是儲物空間了,但凡有能做柜子的地方,在不影響效果的前提下,都做上了儲物柜,增加了卡座也增加了儲物,

龍湖唐寧ONE-130平-混搭風格-兒童房.jpg 龍湖唐寧ONE-130平-混搭風格-衣帽間.jpg 龍湖唐寧ONE-130平-混搭風格-平面圖.jpg

案例設計師

林鳳設計師

設計師:林鳳設計師

從業(yè)時間:8年

設計理念:合理劃分空間,讓設計融入生活,營造自然,品味,格調。

預約設計師

算算你家裝修多少錢

報名即享豐厚贈品,享半價裝修

免費報價
咨詢熱線:400-656-9909
20190221103704574636.jpg

精品設計案例

20180612134930523248.jpg 服務號二維碼.jpg