立即預約 立即預約
免費定制整裝家居

免費定制整裝家居

一站置家 全程無憂 一省到底
hide.png

當前位置: 首頁 > 裝修案例效果圖 > 華潤幸福里

華潤幸福里 87平 北歐風格效果圖

收藏
案例風格 北歐 案例戶型 二居 案例面積 87平米
樓盤名稱 華潤幸福里 設計師 林鳳設計師 案例類型 婚房

設計理念:本案北歐風格,整體給人一種簡約大氣的氣息,沒有反復的空間布局,每處都格外的干凈利落,而且簡潔實用。無論是房頂的吊燈,還是腳下的地板,沒有瑣碎多余的設計,表面光滑柔和,讓人感覺溫暖而舒適。

客廳
第1張
第2張
第3張
餐廳
第1張
臥室
第1張
衛(wèi)生間
第1張
廚房
第1張
門廳
第1張
過廊
第1張
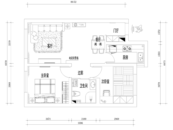
戶型圖
第1張
  • 案例詳情

華潤幸福里-87平米-北歐風格-客廳03.jpg 華潤幸福里-87平米-北歐風格-客廳01.jpg 華潤幸福里-87平米-北歐風格-客廳02.jpg

客廳采用簡潔的線條突出了整體的雅致,然而簡潔并不是簡單。背景墻三個連續(xù)的拱形造型、中間留白處配以白色紋理硅藻泥,生動、活潑同時立體感十足。兩側的壁燈設計,讓人感覺溫馨、舒適。

華潤幸福里-87平米-北歐風格-餐廳.jpg

餐廳在整套戶型中有獨立的區(qū)域,抽象的掛畫、俏皮的餐吊燈,木質的餐桌,溫馨感十足。

華潤幸福里-87平米-北歐風格-臥室.jpg

書房空間不大,設計了榻榻米,門板采用了現代的白色門板,墻面深色乳膠漆調色,與榻榻米形成對比,現代感強烈。

華潤幸福里-87平米-北歐風格-衛(wèi)生間.jpg

女主人是個十分愛干凈的女人,有點強迫癥的她不容得一點點凌亂的存在,不允許一點點瑕疵,因此簡潔清新的色調就是這里的首選,全部白色的衛(wèi)浴更能詮釋一個整潔女人的內心世界。。

華潤幸福里-87平米-北歐風格-廚房.jpg

廚房的設計更注重功能性,女主喜歡在家做飯,所以大大的操作臺滿足了功能性的需要。顏色上,白色的烤漆櫥柜搭配灰色系的墻磚,耐用的同時效果也更加的高檔。

華潤幸福里-87平米-北歐風格-門廳.jpg 華潤幸福里-87平米-北歐風格-過廊.jpg 華潤幸福里-87平米-北歐風格-平面布置圖.jpg

案例設計師

林鳳設計師

設計師:林鳳設計師

從業(yè)時間:5年

設計理念:設計不但要有整體性,更要突出實用性和舒適度,注重人體工程學。簡單、實用、美觀才是王道!

預約設計師

算算你家裝修多少錢

報名即享豐厚贈品,享半價裝修

免費報價
咨詢熱線:400-656-9909
20190221103704574636.jpg

精品設計案例

20180612134930523248.jpg 服務號二維碼.jpg